集裝式機械密封介紹(二)
集裝式機械密封介紹(二):
軸套和壓蓋是集裝式機械密封不可缺少的零件,通過它們可以把所有機械密封零件組合在一起。壓蓋又可與機體相連,當物料溫度過高或過低,需要沖洗時,壓蓋可以加工成有沖洗孔,以滿足工藝需要。緊定螺釘也是很重要的,它是克服動、靜環摩擦力的主要零件。AIG318的緊定螺釘頭部有螺旋槽,可防止螺釘與軸打滑、松動。318i為腰形靜環壓蓋,壓蓋螺栓有兩個。原用密封盤根密封,且無需改動原設備。機械密封需要沖洗時,可選用318A帶有沖洗孔的壓蓋,有四個壓蓋螺栓,并符合API的標準要求。
集裝式機械密封在密封生產廠淸潔的環境下組裝,熟練和正確的組合可保證組裝質量;合理的彈簧壓縮量和橡膠0形圈的變形量,可以保證密封的可靠性;出廠前進行整體的氣密性試驗,更加保證了密封的可靠性。
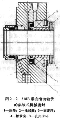
圖2-2為一帶有滾動軸承的集裝式機械密封,軸承的安置可有效地控制軸的徑向圓跳動和竄動,也為機械密封提供了良好的工作環境,使機械密封平穩可靠運行。該機械密封的特點是:為便于裝拆軸承,增設了軸承套4,由孔用卡環5限位軸承外環4,內座由固定環3定位,壓蓋1內開有注油孔,并裝有油封圈2,可定期注人油脂,潤滑軸承。
圖2-3為一單彈簧集裝式機械密封結構,與多彈簧結構機械密封相比,在軸的軸向位移較大時不會出現明顯的影響彈簧力的現象,可有效避免彈簧力變化較大的缺點,在某些場合下可采用此結構。單彈簧集裝式機械密封的特點是:軸向尺寸比318i、318A型長,但符合GB/T6556—1994《機械密封的型式、主要尺寸、材料和識別標志》中的安裝規定。
圖2-2318B帶有滾動軸承的集裝式機械密封

圖2一3318S單彈簧集裝式機械密封

圖2-42318型雙端面集裝式機械密封

圖2-5CHESTERTON155型機械密封

圖2-4為一雙端面集裝式機械密封,是由兩套單端面機械密封組成。兩套機械密封之間裝有分液環,通人清潔封液,以阻止內端面物料的外泄和外端面的潤滑。該機械密封的特點是由兩套單端面組成,軸套較長,這樣給加工帶來一些難度。
圖2-5為切斯特頓公司CHESTERTON155型機械密封。155型的動環為整體式硬環,由軸套上鍵槽帶動;靜環為整體軟環,彈簧安裝于靜環尾部,因此是靜止型。靜環為補償環,有防轉銷防止其轉動,定位帶圍繞在軸套上,控制了彈簧壓縮量。該機型壓蓋很有特點,有八個回轉翼片用頂簧和卡環定位于座組合體八個側面,以兩個翼片為一組可安置一個壓蓋螺母,只要在回轉翼片尺寸范圍內,即可放置四個以下不同直徑的壓蓋蠔釘。
以上介紹的集裝式機械密封均符合GB/76556—1994的規定。由于標準中規定的徑向尺寸必須包含軸套、彈簧、動環等零件,因此彈簧的尺寸受到一定的限制,即彈簧外徑不能太大,這樣會產生較大的彈簧纏繞比(彈簧中徑/絲徑),對彈簧加工要求較髙,且容易產生一定的永久變形。
集裝式機械密封由于安裝簡單,容易被用戶接受。它所選用的彈簧壓縮量、密封面寬度、平衡比、動靜環的配對、O形密封圈的過盈量等,均是長期經驗的積累及用戶反饋所獲得的結果。今后機械密封的發展方向是可以保證集裝式機械密封最合理的參數、無人為安裝誤差、無彈簧堵塞現象、無O形圈磨損等。
飛利集裝式機械密封 金屬波紋管集裝式機械密封 59u約翰克蘭單端面集裝式機械密封
本文源自http://www.car-camera.cn/news/559.html,轉載請注明出處。
(責任編輯:機械密封http://www.car-camera.cn)
上一篇:集裝式機械密封介紹(一) 下一篇:剖分式機械密封介紹
- 上一篇:集裝式機械密封介紹(一)
- 下一篇:剖分式機械密封介紹
機械密封熱門文章
機械密封文章推薦
最新資訊
- 2023-07-04· 機械密封的保養與維修方法
- 2023-06-30· 機械密封的保養與維修方法
- 2023-06-29· 機械密封的運行原理及其特點
- 2023-06-29· 機械密封的密封材料與密封性
- 2023-06-28· 機械密封的安裝及維護方法
- 2023-06-26· 機械密封的密封原理及其應用
聯系我們
浙江生產基地:浙江嘉善環城東路硅谷開發區(赤盾科技園)
嘉興銷售及技術支持中心:嘉興市環北西路經濟開發區
國內24小時銷售人員電話:15990310020
國內24小時技術支持:13917573091
電子郵件:1050760236@qq.com
jxchishidun@163.com
即時聊天工具:QQ: 1050760236
微信:15990310020
網址:www.car-camera.cn



